EINZIEHEN & WOHLFÜHLEN! Modernes Einfamilienhaus mit Wärmepumpe und Photovoltaikanlage!

50189 Elsdorf, Doppelhaushälfte zum Kauf

Referenz

Dieses Objekt wurde bereits erfolgreich vermittelt.

Objekt­beschreibung

Beschreibung

Sie sind auf der Suche nach einem neuen Zuhause in begehrter und familienfreundlicher Wohnlage? Ihre Immobilie ist TOP gepflegt, wurde ständig weiterentwickelt und aufwändig instand gehalten. Letzte Modernisierungen fanden in den Jahren 2023 und 2024 statt - unter anderem wurde hier eine Luftwärmepumpe, sowie eine Photovoltaik-Anlage installiert. Sie suchen also eine Immobilie, in der sich Alltag, Wohnen und Leben besonders angenehm gestalten lassen? Dann stellen wir Ihnen gerne unsere Immobilie vor!

Dieser, im Jahre 1999 errichtete Familientraum mit schönem, sehr gepflegten Garten und Garage, befindet sich in familienfreundlicher Wohnlage Elsdorfs. Ihre Doppelhaushälfte liegt in sehr ruhiger Randlage einer gepflegten Wohnsiedlung mit überwiegend frei stehenden Einfamilien- und Doppelhäusern. Sie genießen hier daher viel Ruhe und die nötige Sicherheit für sich und Ihre Familie.

Zweigeschossig und in Massivbauweise errichtet, ist dieses Haus voll unterkellert und das Dach wurde vollständig ausgebaut. Eine Garage mit elektrischem Sektionaltor und Stromanschlüssen komplettiert Ihr neues Zuhause und bietet Ihnen, zusammen mit den vielen Extras und Installationen im Haus, den perfekten Wohnkomfort. Mit insgesamt ca. 168 m² Wohnfläche und einer Grundstücksgröße von 375 m², haben Sie hier ausreichend Platz für die ganze Familie, Ihre Hobbys, Arbeit und natürlich Erholung.

Im Erdgeschoss befindet sich, neben dem modernen Gäste-WC mit Außenfenster, der großzügige und offen gestaltete Wohn-/ Essbereich mit Terrassen- und Gartenzugang. Ein offener Kamin sorgt hier für gemütliche Stunden bei schönem Ausblick in Ihren Garten. Der Wohn-/ Essbereich ist mit hochwertigem Vinylboden in Holzoptik ausgestattet. Die angrenzende Küche ist ausgestattet mit modernen Kücheneinbauten, Küchengeräten und modernen, weißen Fronten. Ein perfekt integrierter, kleiner Essbereich lädt hier zu einem kurzen Snack, oder einer Tasse Kaffee und Tee ein.

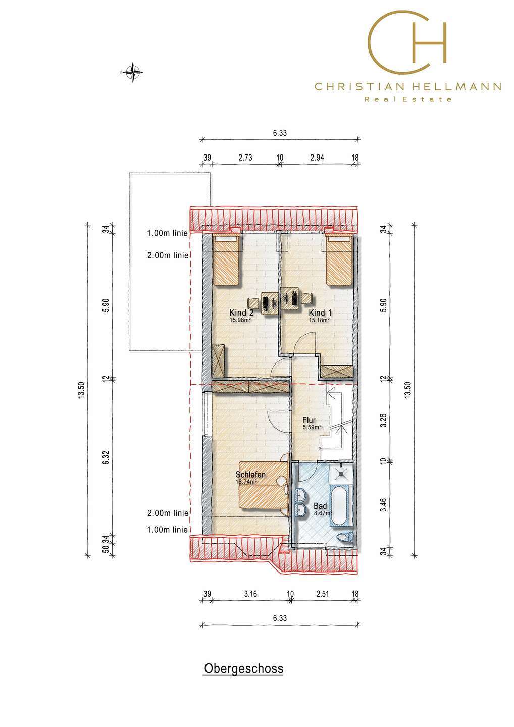
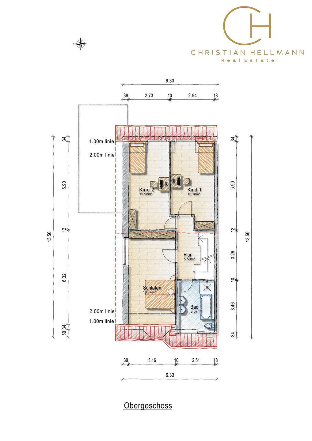
Im Obergeschoss erwarten Sie aktuell zwei Schlafzimmer, ein Büro oder separates Ankleidezimmer, sowie das Master-Badezimmer. Ausgestattet mit modernen Fliesen, einer bodentiefen Rainshower und Deckenspots, lässt auch dieser Raum keine Wünsche offen.

Das Dachgeschoss des Hauses wurde ebenfalls ausgebaut, selbstverständlich gem. aktuellen Anforderungen gedämmt und bietet Ihnen ein tolles, weiteres Zimmer für Gäste, Ihre Kinder, oder Hobbys - Sie haben die Wahl.

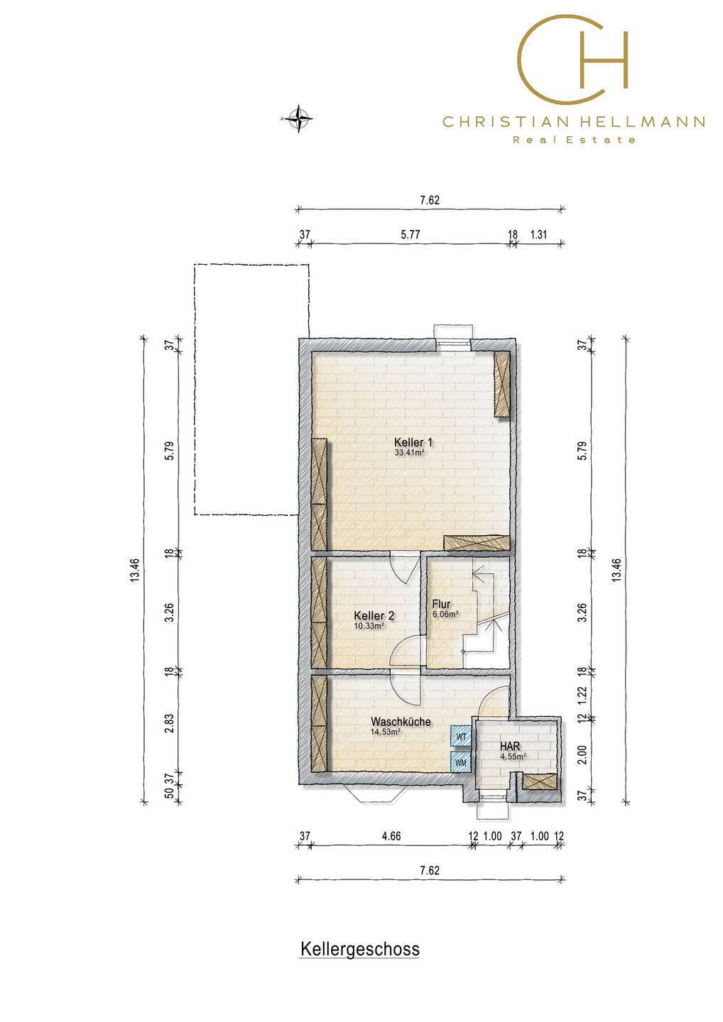
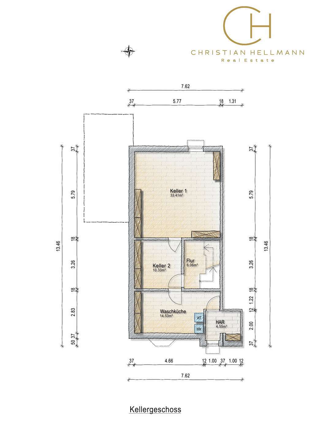
Selbstverständlich ist die Immobilie voll unterkellert und bietet Ihnen auch hier ausreichend Wasch-/ und Stauraum und vor allem einen tollen Fitness-/ und Wellnessbereich. Das besonders Highlight - Ihre eigene Sauna, sowie die schöne Eckdusche an den Fitnessbereich angrenzend!

Bleibt noch der schön angelegte Garten zu erwähnen! Das besondere - aufgrund der Randlage Ihres Hauses haben Sie schönen Weitblick in die angrenzenden Felder! Eine Gartenhütte bietet neben Ihrer Garage Platz für Gartenutensilien.

Wir freuen uns darauf, Ihnen diese tolle Immobilie näher vorstellen dürfen! Schreiben Sie uns eine Nachricht und wir vereinbaren einen Termin vor Ort.

Ausstattung

• Sehr gepflegte Doppelhaushälfte in beliebter & familienfreundlicher Wohnlage
• BJ 1999
• Wohnfläche: 167,95 m²
• Grundstücksfläche: 375 m²
• Massivbauweise
• Klinkerfassade
• Zweigeschossig, Dachgeschoss voll ausgebaut
• Voll unterkellert. Erneuerung der Kellerfenster (2-fach verglast, BJ 2024)
• Garage inkl. elektr. Sektionaltor und Stromanschlüssen (vorliegender Stellplatz vorhanden)
• Umfangreiche Modernisierungsmaßnahmen in 2023/ 2024
• Luftwärmepumpe, Vaillant, BJ 2023 - bitte beachten Sie, dass die Werte des Energieausweises auf der damaligen Gaszentralheizung basieren.
• Photovoltaikanlage BJ 2023 (Alpha-ESS Storion-SMILE-B3)
• Entkalkungsanlage BJ 2023
• Wände und Decken geglättet und gespachtelt
• Fußbodenheizung in allen Etagen inkl. Kellergeschoss
• Offene Holztreppe mit verglastem Geländer
• Teilw. Klimageräte vorhanden
• Offener Kamin im Wohn-/ Essbereich
• Erdgeschoss: Diele, Gäste-WC, offener Wohn-/ Essbereich mit Terrassen-/ Gartenzugang, Küche mit modernen Einbaugeräten
• OG: Diele, Badezimmer, zwei Schlafzimmer, Büro/ Ankleiderzimmer
• Dachgeschoss/ Spitzboden vollständig ausgebaut
• Kellergeschoss: Wasch-/ Trockenraum mit PV-Speichern, Abstellraum inkl. Küchenzeile
• Fitness-/ Wellnessraum inkl. Sauna (BJ 2019) und bodentiefer Eckdusche
• Erneuerung Treppengeländer in 2024
• Erneuerung Haustüre (Sicherheitsstufe 4, optionale Türöffnung per Fingerabdruck) in 2024
• 3-fach verglaste Fenster zur Wetterseite, BJ 2024
• Außenrollläden elektrisch
• Küche mit hochglänzenden weißen Fronten inkl. elektrischer Einbaugeräte
• Großzügige Außenterrasse
• Gartenhütte
• Sehr gepflegte Gartenanlage mit Zugang über Wohnhaus und Garage

Sonstige Informationen

Bitte beachten Sie, dass die hier von uns angegebenen Informationen auf Auskünften der Verkäufer, Vermieter, Behörden, Hausverwaltungen, etc. beruhen. Eine Haftung für die Richtigkeit oder Vollständigkeit der Angaben können wir, trotz unserer Tätigkeit als sorgfältiger Kaufmann, daher nicht übernehmen. Alle Immobilienangebote sind freibleibend und vorbehaltlich Irrtümer, Zwischenverkauf und Vermietung oder sonstiger Zwischenverwertung. Bitte sehen Sie das Exposé als Vorabinformation und wir weisen darauf hin, dass als Rechtsgrundlage alleinig der notariell beglaubigte und abgeschlossene Kauf- bzw. Mietvertrag gilt.

Der Makler-Vertrag mit uns kommt durch schriftliche Vereinbarung oder durch die Inanspruchnahme unserer Maklertätigkeit auf der Basis des Objekt-Exposés und seiner Bedingungen zustande. Die Käuferprovision entnehmen Sie bitte dem jeweiligen Angebot. Sie ist bei notariellem Vertragsabschluss verdient und fällig. Die Höhe der Provision unterliegt einer Anpassung bei Steuersatzänderung. Die CHRISTIAN HELLMANN Real Estate erhält einen unmittelbaren Zahlungsanspruch gegenüber dem Käufer (Vertrag zugunsten Dritter, §328 BGB). Grunderwerbssteuer, Notar- und Gerichtskosten trägt der Käufer.

Datenschutz hat für uns Priorität, Ihre Daten werden vertraulich behandelt! Unsere Datenschutzerklärung finden Sie bitte hier: https://hellmannrealestate.com/datenschutz

Wünschen auch Sie eine professionelle Vermarktung Ihrer Immobilie? Ob Verkauf oder Vermietung, wir sind gerne Ihre Ansprechpartner und bieten Ihnen den perfekten Service vom Erstgespräch bis zur Schlüsselübergabe. Sie möchten keine Angebote mehr verpassen? Folgen Sie uns gerne auch auf Facebook oder Instagram:
www.facebook.com/hellmannrealestate/
https://www.instagram.com/hellmannrealestate

Lage

Google Maps

Mit dem Laden der Karte akzeptieren Sie die Datenschutzerklärung von Google.
Mehr erfahren

Karte laden

Die dargestellte Position der Immobilie ist nur eine ungefähre Angabe.

Immobiliendaten-Import und Darstellung für WordPress: WP-ImmoMakler®