Verfügbar
Kauf

Attraktives Investment mir Erbbaurecht in bester Lage Benraths!

Kaufpreis 2.400.000 €
Zimmer 26
Wohnfläche ca. 650,23 m²
Balkon
Ja
Ausstattung
Gehoben
Dusche
Ja
Bad mit Badewanne
Ja
Einbauküche
Ja
Parkett
Ja
Personenaufzug
Ja
Garten
Ja
Barrierefrei
Ja
Keller
Ja
Abstellraum
Ja
Gäste WC
Ja

Beschreibung

- Wohnungspaket in beliebtem Wohnquartier Benraths!
- Wenige Schritte vom Rhein entfernt
- Sehr gepflegte Wohnanlage
- Baujahr: 1996
- 8 Wohneinheiten
- Wohnanlage Steinkribbenstraße 7, 11 und Benrather Schloßallee 17, 17A, 17B, 17C, 17D
- Wohneinheiten auf Erbpachtgrundstück
- 545,11 m² zugehörige Grundstücksfläche der Wohnanlage (6.054 m² Gesamtfläche)
- 650,23 m² Wohnfläche
- Wohnflächen: 74 m² bis 95 m²
- Balkon, Wintergarten oder Terrasse
- Lage: EG, 1.OG, 2.OG, DG
- Aufzüge vorhanden
- Kellerabteile vorhanden
- Fenster 2-fach, Kunststoff
- Heizung: Gaszentralheizungen BJ 2016
- Energieeffizienzklasse: D, E
- Energieverbrauch: 124,3 kWh/(m²*a) bis 153,8 kWh/(m²*a)
- WE09: 78,81 m², 2.OG, 3 Zimmer, Küche, 2 Badezimmer, Wintergarten
- WE34: 78,81 m², 1.OG, 3 Zimmer, Küche, 2 Badezimmer, Wintergarten
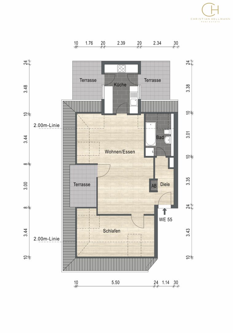
- WE55: 70,61 m², DG, 2 Zimmer, Küche, Badezimmer, 3 Terrassen
- WE60: 83,60 m², 2.OG, 4 Zimmer, Küche, 2 Badezimmer, Balkon
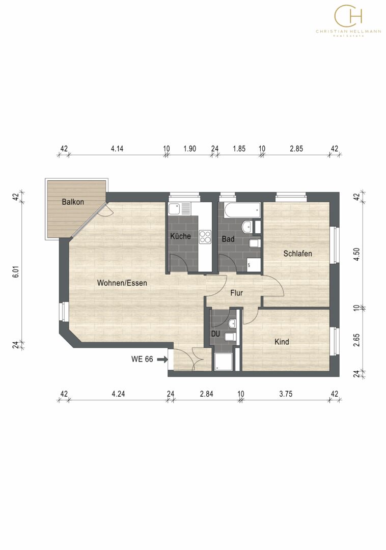
- WE66: 74,20 m², 1.OG, 3 Zimmer, Küche, 2 Badezimmer, Balkon
- WE69: 74,20 m², 2.OG, 3 Zimmer, Küche, 2 Badezimmer, Balkon
- WE75: 95,00 m², EG, 4 Zimmer, Küche, 2 Badezimmer, Terrasse
- WE87: 95,00 m², EG, 4 Zimmer, Küche, 2 Badezimmer, Terrasse
- WE09: Vermietet seit 01.09.2013, monatliche Nettokaltmiete/ m²: 9,98 EUR
- WE34: Vermietet seit 01.04.2019, monatliche Nettokaltmiete/ m²: 12,43 EUR
- WE55: Vermietet seit 15.03.1997, monatliche Nettokaltmiete/ m²: 13,61 EUR
- WE60: Vermietet seit 01.06.2015, monatliche Nettokaltmiete/ m²: 11,42 EUR
- WE66: Vermietet seit 01.08.2013, monatliche Nettokaltmiete/ m²: 11,62 EUR
- WE69: Vermietet seit 01.12.2019, monatliche Nettokaltmiete/ m²: 12,80 EUR
- WE75: Vermietet seit 01.06.2022, monatliche Nettokaltmiete/ m²: 15,79 EUR
- WE87: Vermietet seit 01.07.2018, monatliche Nettokaltmiete/ m²: 12,00 EUR
- IST-Jahresnettokaltmiete Wohnen: 97.618,32 EUR (12,51 EUR/ m²)
- Nebenkosten/ Jahr (WP 2025): 36.600,00 EUR
- Umlegbare NK/ Jahr (WP 2025): 28.370,04 EUR
- Erbpachtzins/ Jahr: 35.087,40 EUR
- Monatlicher Erbpachtzins/ m² Wohnfläche: 4,50 EUR
- Informationen zum Erbbaurecht finden Sie unter "Sonstiges"

Mehr anzeigenWeniger anzeigen

Ausstattung

Attraktives Investment mir Erbbaurecht in bester Lage Benraths – wenige Schritte vom Rhein entfernt!

In einem der beliebtesten Wohnquartiere Düsseldorfs, nur wenige Meter vom Rhein und dem Schlosspark Benrath entfernt, bietet dieses attraktive Wohnungspaket eine hervorragende Gelegenheit für Investoren. Die acht Wohneinheiten befinden sich in einer sehr gepflegten Wohnanlage aus dem Jahr 1996, die sich auf die Adressen Steinkribbenstraße 7 und 11 sowie Benrather Schloßallee 17, 17A, 17B, 17C und 17D verteilt. Die Immobilie steht auf einem Erbpachtgrundstück mit einer Gesamtfläche von ca. 6.054 m², wovon rund 545,11 m² auf das angebotene Paket entfallen.

Die Gesamtwohnfläche der acht Einheiten beläuft sich auf ca. 650,23 m². Die Wohnungen sind zwischen 74 m² und 95 m² groß und zeichnen sich durch funktionale Grundrisse und lichtdurchflutete Räume aus. Alle Einheiten verfügen über Balkone, Terrassen oder Wintergärten, die den Wohnwert zusätzlich erhöhen. Die Wohnungen sind auf das Erdgeschoss, das erste und zweite Obergeschoss sowie das Dachgeschoss verteilt. Ein Aufzug ist in den Häusern vorhanden, zu jeder Einheit gehört außerdem ein separates Kellerabteil.

Die Ausstattung ist solide und zeitgemäß: Parkettböden, Kunststofffenster mit Zweifachverglasung, Gaszentralheizungen aus dem Baujahr 2016 und moderne Einbauküchen. Die vorliegenden Energieausweise mit den Klassen D und E (Verbrauch zwischen 124,3 kWh/m²a und 153,8 kWh/m²a) dokumentieren ebenfalls die Wirtschaftlichkeit und den gepflegten Zustand der Anlage. Die Anlage besticht durch viel Grün, ein autofreies Wohnen und schöne Fußwege zwischen den einzelnen Wohngebäuden, die aus sechs bis 18 Wohneinheiten mit sehr gepflegten gemeinschaftlichen Flächen und Kellern bestehen.

Die einzelnen Wohneinheiten sind wie folgt ausgestattet und vermietet:

WE09: 78,81 m², 2. OG, 3 Zimmer, Küche, 2 Bäder, Wintergarten, vermietet seit 2013, m²-Miete 9,98 €
WE34: 78,81 m², 1. OG, 3 Zimmer, Küche, 2 Bäder, Wintergarten, vermietet seit 2019, m²-Miete 12,43 €
WE55: 70,61 m², DG, 2 Zimmer, Küche, Bad, 3 Terrassen, vermietet seit 1997, m²-Miete 13,61 €
WE60: 83,60 m², 2. OG, 4 Zimmer, Küche, 2 Bäder, Balkon, vermietet seit 2015, m²-Miete 11,42 €
WE66: 74,20 m², 1. OG, 3 Zimmer, Küche, 2 Bäder, Balkon, vermietet seit 2013, m²-Miete 11,62 €
WE69: 74,20 m², 2. OG, 3 Zimmer, Küche, 2 Bäder, Balkon, vermietet seit 2019, m²-Miete 12,80 €
WE75: 95,00 m², EG, 4 Zimmer, Küche, 2 Bäder, Terrasse, vermietet seit 2022, m²-Miete 15,79 €
WE87: 95,00 m², EG, 4 Zimmer, Küche, 2 Bäder, Terrasse, vermietet seit 2018, m²-Miete 12,00 €

Die aktuelle IST-Jahresnettokaltmiete beläuft sich auf 97.618,32 €, was einer Durchschnittsmiete von rund 12,51 €/m² entspricht. Die jährlichen Nebenkosten (Wirtschaftsplan 2025) liegen bei ca. 36.600 €, davon sind rund 28.370 € umlagefähig. Der jährliche Erbpachtzins beträgt 35.087,40 €, entsprechend ca. 4,50 €/m² Wohnfläche monatlich.

Die gepflegte Wohnanlage mit Aufzügen, Balkonen, Wintergärten und Terrassen, soliden Mietverhältnissen und der attraktiven Lage in direkter Rheinnähe macht dieses Paket zu einem wertstabilen Investment mit nachhaltiger Rendite. Weitere Informationen zum Erbbaurecht erhalten Interessenten im Abschnitt „Sonstiges“.

Mehr anzeigenWeniger anzeigen

Energieeffizienzklasse

A+
A
B
C
D
E
F
G
H
Energieausweisliegt vor
Energie­ausweistypVerbrauchsausweis
Erstellt am05.12.2018
Gültig bis04.12.2028
Endenergieverbrauch129,40 kWh/(m²·a)
PrimärenergieträgerGas
EnergieeffizienzklasseD
HeizungsartZentralheizung
HeizungsartZentralheizung

Lage

Die Immobilien befinden sich in einer der begehrtesten Wohnlagen im Düsseldorfer Süden, im traditionsreichen Stadtteil Benrath. Dieser Stadtteil vereint eine hohe Wohn- und Lebensqualität mit historischem Charme, grüner Umgebung und einer hervorragenden Infrastruktur. Besonders die Nähe zum berühmten Benrather Schloss mit seiner weitläufigen Parkanlage verleiht der Lage eine außergewöhnliche Attraktivität.

Die Steinkribbenstraße und die Benrather Schloßallee gehören zu den ruhigen, gepflegten Wohnstraßen in Benrath und sind geprägt von stilvollen Mehrfamilienhäusern, Einfamilienhäusern sowie modernen Wohnanlagen. Das Wohnumfeld ist durch eine angenehme Nachbarschaft und viel Grün gekennzeichnet, sodass ein harmonisches Zusammenspiel von urbanem Wohnen und naturnaher Erholung entsteht.

Die tägliche Versorgung ist durch zahlreiche Einkaufsmöglichkeiten in der nahen Benrather Fußgängerzone bestens gesichert. Hier finden sich Supermärkte, Bäckereien, Fachgeschäfte, Apotheken sowie Ärzte verschiedener Fachrichtungen. Auch Cafés, Restaurants und kleinere Boutiquen tragen zum lebendigen, gleichzeitig entspannten Charakter der Umgebung bei. Familien profitieren von einem breiten Angebot an Kindergärten, Grundschulen und weiterführenden Schulen, die sich in der Nähe befinden.

Ein besonderer Vorzug der Lage ist die unmittelbare Nähe zum Schlosspark Benrath, einer der schönsten Barockanlagen Europas. Mit seinen weitläufigen Grünflächen, Wasserläufen und historischen Gebäuden bietet er Raum für Spaziergänge, Sport oder entspannte Stunden im Freien. Darüber hinaus sind auch der Rhein und seine Uferwege nicht weit entfernt, sodass Freizeit- und Erholungsmöglichkeiten direkt vor der Haustür beginnen.

Die Verkehrsanbindung ist hervorragend: Der S-Bahnhof Düsseldorf-Benrath mit den Linien S6 und S68 bietet schnelle Verbindungen in die Düsseldorfer Innenstadt, nach Köln sowie ins gesamte Ruhrgebiet. Zahlreiche Bus- und Straßenbahnlinien sichern die lokale Mobilität. Mit dem Auto ist die Lage über die nahegelegene A59, A46 und A57 optimal an das überregionale Verkehrsnetz angebunden. Der Flughafen Düsseldorf International ist in rund 20 Minuten erreichbar.

Die Steinkribbenstraße sowie die Benrather Schloßallee bieten somit die perfekte Kombination aus urbaner Infrastruktur, historischem Flair und grüner Wohnumgebung. Die Lage zählt seit jeher zu den bevorzugten Adressen im Düsseldorfer Süden und überzeugt gleichermaßen Eigennutzer wie Kapitalanleger durch ihre hohe Lebensqualität, Wertstabilität und ausgezeichnete Anbindung.

Distanzen

Flughafen
22.63 km
Fernbahnhof
1.57 km
Bus
0.27 km

Weitere Beschreibung

Attraktive Kapitalanlage mit Erbbaurecht!

Das Erbbaurecht bietet eine interessante Möglichkeit, den Traum von den eigenen vier Wänden oder einer renditestarken Investition zu realisieren – und das zu deutlich günstigeren Konditionen. Bei dieser Form des Eigentums sind Grundstück und Bebauung rechtlich voneinander getrennt. Anstelle eines hohen Kaufpreises für das Grundstück entrichten Sie einen Erbbauzins über eine fest vereinbarte Laufzeit.

Dadurch profitieren Käufer von zahlreichen Vorteilen:
- Reduzierter Kaufpreis durch den Wegfall der Grundstückskosten
- Mehr Wohnfläche für das gleiche Budget
- Niedrigere Bankfinanzierung und somit geringere Verschuldung
- Höhere Mietrendite im Verhältnis zum eingesetzten Kapital
- Steuerliche Vorteile: Erbbauzinsen sind absetzbar, Grundstückskosten hingegen nicht
- Volle Verwertbarkeit: Das Eigentum im Erbbaurecht ist vererbbar, übertragbar und handelbar wie klassisches Wohnungseigentum

Der jährliche Erbbauzins beträgt 35.087 € (entspricht 2.924 € monatlich). Das Erbbaurecht wurde 1997 begründet und läuft insgesamt 199 Jahre – aktuell verbleiben somit noch großzügige 171 Jahre Restlaufzeit.