• Reihenmittelhaus mit schönem Garten und gemeinschaftlichem Spielplatz
• Beliebte, verkehrsberuhigte Wohnlage in Benrath
• BJ 1988
• Massivbauweise
• Zweigeschossig, Dachgeschoss voll ausgebaut (Genehmigung vorliegend)
• Voll unterkellert
• Garagenstellplatz im gemeinschaftlichen Garagenhof
• Wohnfläche: 139,12 m²
• Grundstücksfläche: 92 m²
• Anteil an Garagenhof: 48,14 m²
• Anteil an Zuwegung: 18,5 m²
• Grundstücksfläche gesamt: 158,6 m²
• Erdgeschoss: Windfang mit Gäste-WC, Diele mit Zugang zur Küche, offener Wohn-/ Essbereich mit Terrassen-/ Gartenzugang
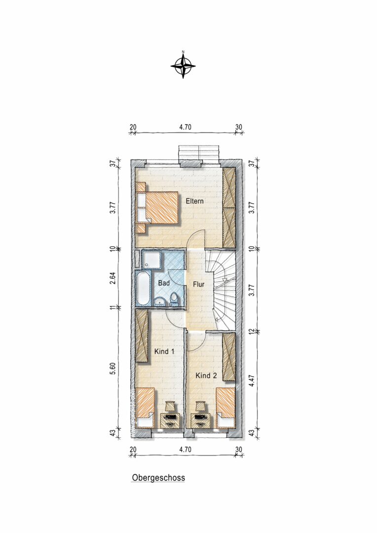
• Obergeschoss: Diele, Badezimmer, 2 Kinder-/ Arbeitszimmer, Elternschlafzimmer
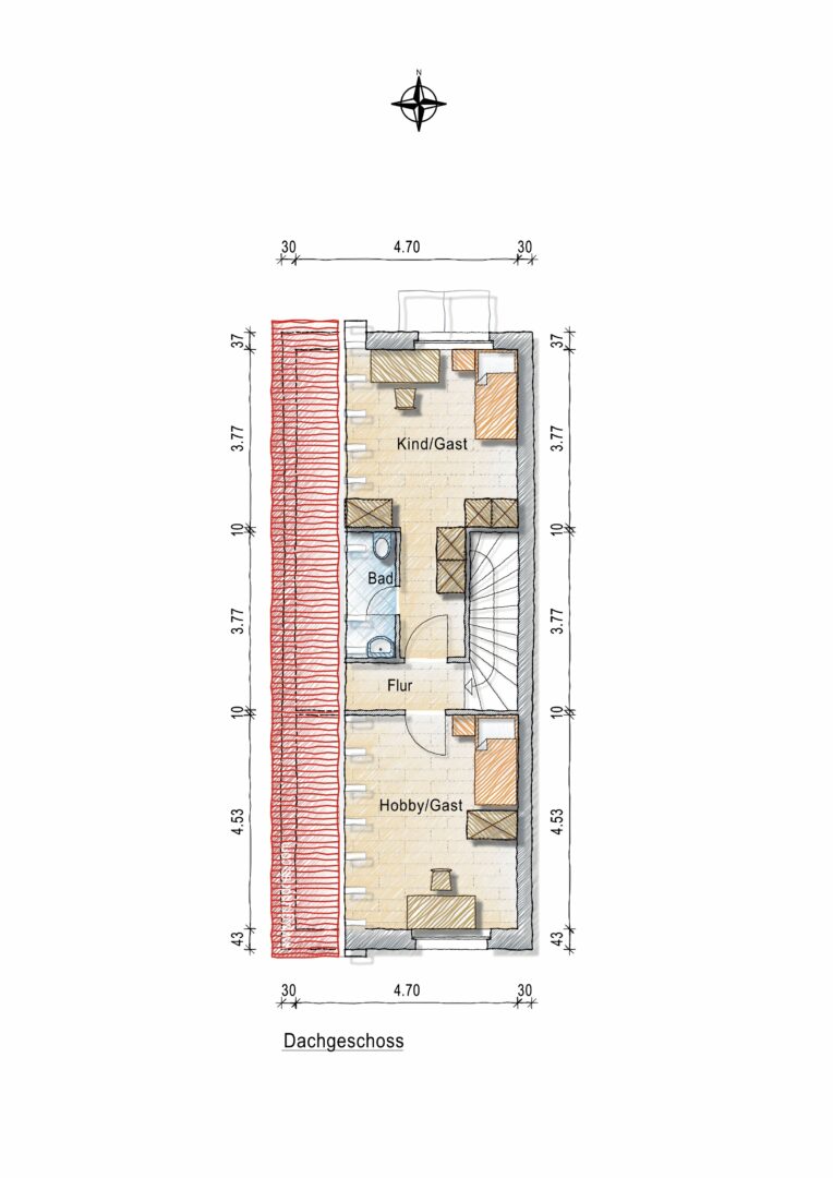
• Dachgeschoss: Diele, Badezimmer, 2 Kinder-/ Arbeitszimmer
• Kellergeschoss: Waschraum, Vorratskeller, großer Hobbykeller
• Fenster Holzkonstruktion, zweifach verglast, Außenrollläden, BJ 1988
• Große Fensterfront im Wohn-/ Essbereich zum Garten
• Geschlossen Holztreppe zum Obergeschoss/ offene Holztreppe zum Dachgeschoss
• Stäbchenparkett im Obergeschoss und Dachgeschoss
• Praktischer Stauraum im Dachgeschoss
• Großzügiger Hobbyraum im Kellergeschoss, beheizt
• Separater Stromzähler für Dachgeschoss vorbereitet
• Moderne Parkgarage mit elektrischem Sektionaltor und eigenem Stellplatz
• Außenterrasse mit Markise
• Gepflegte Gartenanlage mit separatem Zugang zu gemeinschaftlichen Spielplatz
• Heizung: Zentralheizung BJ 2023
• Energieträger: Gas
• Energieeffizienzklasse: B
• Energieverbrauch: 53,93 kWh/(m²*a)
Familienfreundliches Reihenmittelhaus mit Garten in begehrter Lage von Düsseldorf-Benrath!
Beschreibung
Ausstattung
Familienfreundliches Reihenmittelhaus mit Garten in begehrter Lage von Düsseldorf-Benrath!
Dieses im Jahr 1988 in solider Massivbauweise errichtete Reihenmittelhaus überzeugt durch seine familienfreundliche Lage, eine durchdachte Raumaufteilung sowie einen gepflegten Garten mit direktem Zugang zu einem gemeinschaftlich genutzten Spielplatz. Die Immobilie befindet sich in einem beliebten, verkehrsberuhigten Wohnquartier von Benrath und bietet auf einer Wohnfläche von rund 139 m² ausreichend Platz für die ganze Familie.
Das zweigeschossige Haus mit voll ausgebautem Dachgeschoss (Genehmigung liegt vor) ist voll unterkellert und auf einem Grundstück von insgesamt 158,6 m² gelegen, bestehend aus 92 m² Haus- und Gartenfläche, 48,14 m² Anteil am Garagenhof sowie 18,5 m² Anteil an der gemeinschaftlichen Zuwegung. Zur Immobilie gehört ein Stellplatz in der modernen Parkgarage mit elektrischem Sektionaltor.
Im Erdgeschoss befinden sich ein Windfang mit Gäste-WC, eine Diele mit Zugang zur Küche sowie ein großzügiger, offener Wohn- und Essbereich. Eine große Fensterfront öffnet den Raum zum Garten hin und sorgt für ein helles Wohnambiente. Von hier gelangt man auf die Terrasse mit Markise und in den gepflegten Garten, der durch einen separaten Zugang mit dem angrenzenden Spielplatz verbunden ist.
Das Obergeschoss verfügt über eine zentrale Diele, ein Badezimmer sowie zwei Kinder- bzw. Arbeitszimmer und ein Elternschlafzimmer. Das ausgebaute Dachgeschoss bietet weiteren Platz mit einer Diele, einem zusätzlichen Badezimmer sowie zwei weiteren Kinder- bzw. Arbeitszimmern. Praktischer Stauraum ist hier ebenfalls vorhanden.
Der Keller ist voll ausgebaut und unterteilt sich in einen Waschraum, einen Vorratskeller sowie einen großzügigen Hobbyraum, der beheizt ist und vielfältige Nutzungsmöglichkeiten bietet. Ein separater Stromzähler für das Dachgeschoss ist bereits vorbereitet, sodass eine flexible Nutzung gewährleistet ist.
Die Ausstattung umfasst zweifach verglaste Fenster in Holzkonstruktion mit Außenrollläden (Baujahr 1988), eine geschlossene Holztreppe ins Obergeschoss sowie eine offene Holztreppe ins Dachgeschoss. Im Ober- und Dachgeschoss wurde ansprechendes Stäbchenparkett verlegt, das den Räumen einen warmen und wohnlichen Charakter verleiht. Die Heizung wurde 2023 erneuert und wird über eine moderne Gaszentralheizung betrieben. Der Energieausweis liegt vor, die Einstufung der Energieeffizienzklasse erfolgt aktuell.
Dieses gepflegte Reihenmittelhaus bietet mit seiner durchdachten Aufteilung, der guten Ausstattung und dem attraktiven Garten ein ideales Zuhause für Familien. Die ruhige und dennoch zentrale Lage in Benrath, die Nähe zu Schulen, Einkaufsmöglichkeiten und dem Schlosspark sowie der direkte Zugang zum Spielplatz machen die Immobilie zu einem besonders attraktiven Angebot.
Energieeffizienzklasse
Lage
Die Immobilie befindet sich in bevorzugter Lage des Düsseldorfer Stadtteils Benrath, einem der gefragtesten Wohnquartiere im Süden der Landeshauptstadt. Ihr neues Zuhause liegt in einer ruhigen, nicht befahrenen Wohnstraße, die durch ihre gepflegte Bebauung und die angenehme Nachbarschaft überzeugt. Sie verbindet die Nähe zum lebendigen Stadtteilzentrum mit einer grünen und familienfreundlichen Wohnumgebung.
In fußläufiger Entfernung finden sich sämtliche Einrichtungen des täglichen Bedarfs, darunter Supermärkte, Bäckereien, Apotheken, Ärzte, Cafés und Restaurants. Auch Schulen, Kindergärten und Spielplätze sind in unmittelbarer Nähe, sodass die Lage besonders für Familien attraktiv ist.
Einen besonderen Reiz bietet die unmittelbare Nähe zum Schloss Benrath mit seiner weitläufigen Parkanlage, die zu Spaziergängen, sportlichen Aktivitäten und erholsamen Stunden im Grünen einlädt. Auch die Ufer des Rheins sind schnell erreichbar und bieten zusätzliche Freizeit- und Erholungsmöglichkeiten.
Die Verkehrsanbindung ist hervorragend: Mehrere Bus- und Straßenbahnlinien sichern die schnelle Verbindung in die Düsseldorfer Innenstadt sowie in die umliegenden Stadtteile. Der S-Bahnhof Düsseldorf-Benrath liegt ebenfalls nur wenige Minuten entfernt und ermöglicht direkte Anschlüsse nach Düsseldorf-Zentrum, Köln und ins Ruhrgebiet. Über die nahegelegenen Autobahnen A59, A46 und A57 ist auch das überregionale Verkehrsnetz optimal erschlossen. Der internationale Flughafen Düsseldorf ist in rund 20 Minuten erreichbar.
Die Kombination aus ruhiger, familienfreundlicher Wohnlage, hervorragender Infrastruktur und der Nähe zu Natur- und Kulturhighlights wie dem Schlosspark Benrath machen Ihre neue Adresse zu einem äußerst attraktiven Standort für anspruchsvolles Wohnen im Düsseldorfer Süden.
Distanzen
Weitere Beschreibung
Bitte beachten Sie, dass die hier von uns angegebenen Informationen auf Auskünften der Verkäufer, Vermieter, Behörden, Hausverwaltungen, etc. beruhen. Eine Haftung für die Richtigkeit oder Vollständigkeit der Angaben können wir, trotz unserer Tätigkeit als sorgfältiger Kaufmann, daher nicht übernehmen. Alle Immobilienangebote sind freibleibend und vorbehaltlich Irrtümer, Zwischenverkauf und Vermietung oder sonstiger Zwischenverwertung. Bitte sehen Sie das Exposé als Vorabinformation und wir weisen darauf hin, dass als Rechtsgrundlage alleinig der notariell beglaubigte und abgeschlossene Kauf- bzw. Mietvertrag gilt.
Der Makler-Vertrag mit uns kommt durch schriftliche Vereinbarung oder durch die Inanspruchnahme unserer Maklertätigkeit auf der Basis des Objekt-Exposés und seiner Bedingungen zustande. Die Käuferprovision entnehmen Sie bitte dem jeweiligen Angebot. Sie ist bei notariellem Vertragsabschluss verdient und fällig. Die Höhe der Provision unterliegt einer Anpassung bei Steuersatzänderung. Die CHRISTIAN HELLMANN Real Estate erhält einen unmittelbaren Zahlungsanspruch gegenüber dem Käufer (Vertrag zugunsten Dritter, §328 BGB). Grunderwerbssteuer, Notar- und Gerichtskosten trägt der Käufer.
Datenschutz hat für uns Priorität, Ihre Daten werden vertraulich behandelt! Unsere Datenschutzerklärung finden Sie bitte hier: https://hellmannrealestate.com/datenschutz
Wünschen auch Sie eine professionelle Vermarktung Ihrer Immobilie? Ob Verkauf oder Vermietung, wir sind gerne Ihre Ansprechpartner und bieten Ihnen den perfekten Service vom Erstgespräch bis zur Schlüsselübergabe.
Sie möchten keine Angebote mehr verpassen? Folgen Sie uns gerne auch auf Facebook oder Instagram:
www.facebook.com/hellmannrealestate/
https://www.instagram.com/hellmannrealestate
Ihr Team von CHRISTIAN HELLMANN Real Estate






















